Der Neubau des Stadtteil- und Jugendzentrums vereinigt zwei verschiedene Nutzer und Nutzungen in einem Gebäude. Einige Räume des neuen Hauses werden exklusiv von entweder dem Jugendzentrum oder dem Stadtteilzentrum genutzt. Es gibt aber auch Räume, z.B. den Mehrzweckraum, den sich beide Parteien teilen. Was beide Nutzer aber ganz offensichtlich gemeinsam haben, ist das Wort „Zentrum“ in ihrem Namen.

 

Die Installation ZENTRUM sieht vor, diesen „Zentrumsgedanken“ und die Gemeinsamkeiten zu unterstreichen und im übertragenen wie sprichwörtlichen Sinne hervorzuheben, indem es das Gebäude tatsächlich ins ZENTRUM stellt.
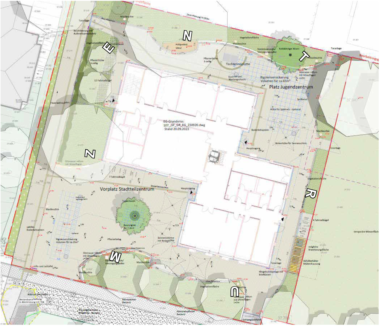
Die sieben Buchstaben des Wortes ZENTRUM werden als liegende Betonskulpturen kreisförmig um das gesamte Gebäude herum platziert. Die Buchstaben werden auf einen imaginierten Mittelpunkt im Zentrum des gemeinsamen Hauses ausgerichtet.

 

Die Besucher*innen des Stadtteil- und Jugendzentrum können allerdings immer nur zwei bis drei Buchstaben auf einmal sehen. Sie müssen einmal im Uhrzeigersinn um das Gebäude herum laufen, um das Wort lesen zu können. Man muss also in Bewegung sein, um das Ganze zu erfassen.

 

Die dezentralen Betonskulpturen umgeben und vereinen die zwei unterschiedlichen Nutzer und definieren das ZENTRUM.

 

Technische Angaben

 

Die Buchstaben sind als liegende Betonskulpturen im Font Neue Helvetica bold als Versalien ausgeführt. Die Maße sind je nach Buchstabe 100 x ca. 80 x 40 cm.
Sie werden aus Faserbeton C35/45; F4; 8mm gefertigt und sind wetter-, frost- und tausalzbeständig. Es werden Kunststofffasern als Bewehrung verwendet, so dass es keine Durchrostung von Stahlbewehrungen gibt.   

   

Die Buchstabenskulpturen werden in den Grünanlagen rund um das Gebäude herum platziert, und zwar so, dass das Wort links am Vorplatz des Stadtteilzentrums mit dem Z beginnt, im Uhrzeigersinn um das Haus herumführt und rechts am Vorplatz mit dem M endet.

 

Ein leichtes Einwachsen der Betonbuchstaben in die Vegetation ist gewollt als natürliche Verbindung von Natur und Kultur. Nutzer*innen der beiden Zentren können auf den Skulpturen sitzen oder auf ihnen herumlaufen.

  • Jahr

    2025

  • Ort

    Stadtteil- und Jugendzentrum Auguste-Viktoria Allee Berlin-Reinickendorf